
マンションリノベ完成見学会
| 日時 | 2026年4月4日(土)・5日(日) |
|---|---|
| 場所 | 京都市中京区マンション |
3DKを、開放感あふれる2LDKへ。
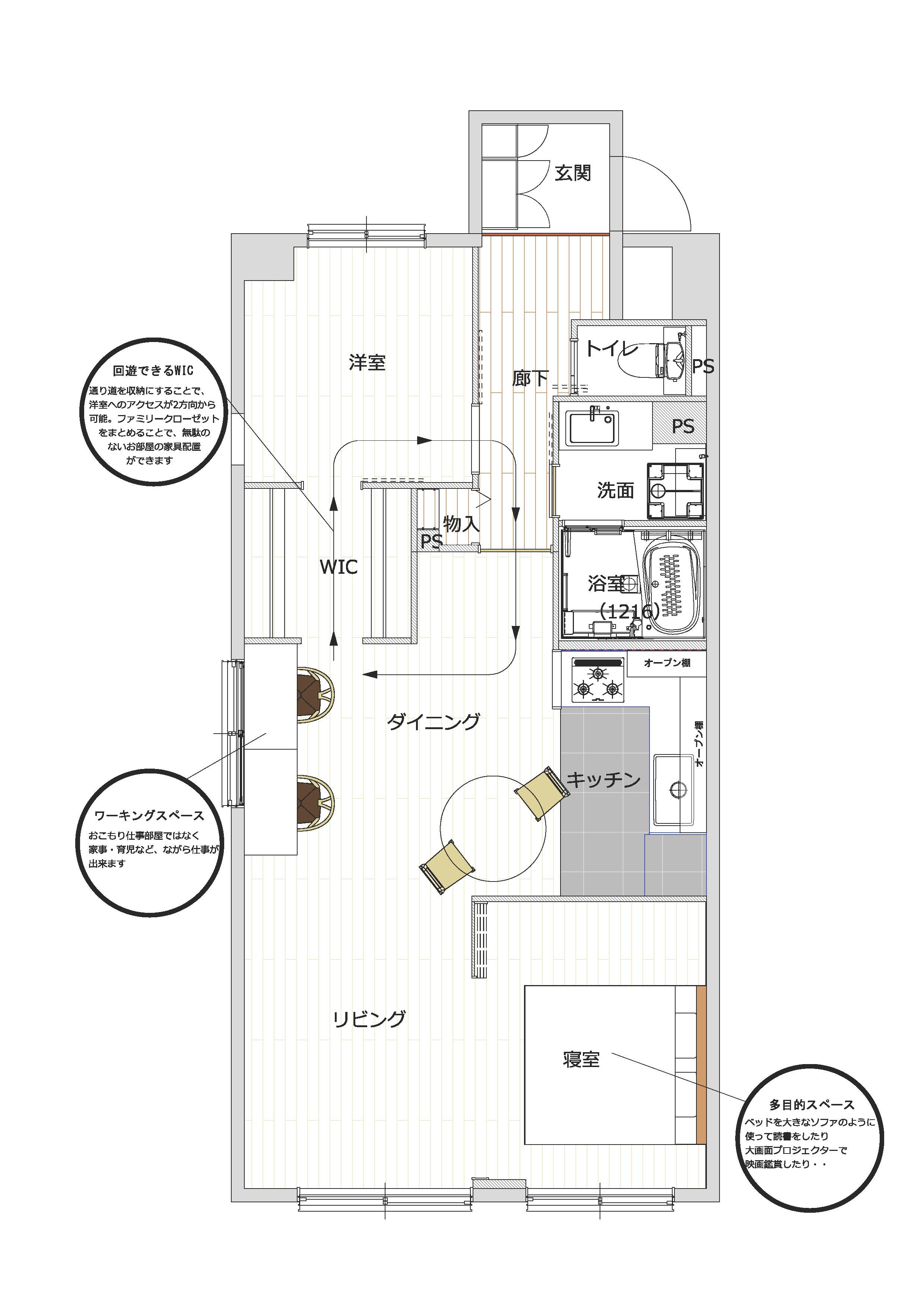
シーンで使い分ける可変性のある間取りと、住まいの中心に回遊できるウォークインクローゼットがある
共働き・子育て世代にピッタリな間取りの中古マンションリフォームです。
収納も、開放感も、デザインも。欲しかった暮らしをカタチにしました

多機能な寝室&広々リビング
寝室の3枚引き戸を最大間口まで開くと、大空間のリビングのような感覚になる可変性のある間仕切りは、寝室として使う場合は
プライベートを保つことも、開放してベッドを大きなソファのように使い、読書をしたりリビングの壁に映し出すプロジェクターで
映画鑑賞をしたり・・・と共働きや子育て世帯には嬉しい間取りです。
|
|
|
回遊できるウォークインクローゼット
通り道を収納にすることで、 洋室へのアクセスが2方向から可能。ファミリークローゼットをまとめることで、無駄のないお部屋の家具配置ができます。


オーク×障子の「洗練された和モダン」(Japanese Modern)
オークの淡いベージュ〜黄色味のある色調の床に、伝統的な障子を合わせた上質なインテリア。洋の機能性と和の安らぎが共鳴する、落ち着きある内装デザインは必見です。
【現地で相談出来ること】
・どれぐらいの価格でこのリノベーションが出来るの??
・今の住まいで叶えたいことを聞いて欲しい。出来るのか教えて欲しい。
・物件探しやローンの相談からしたい
などなど、マンションリフォーム専門のアドバイザーがお答え致します。
実際にお住まいになる前の2日間のみのマンションリノベ完成見学会です。
この機会をお見逃しなく!!
参加ご予約フォーム
【ドメイン設定(受信拒否設定)をされているお客様へのお願い】
フォーム送信いただいた後に「自動返信メール」と、数日以内に弊社スタッフから「ご確認メール」をお送りします。
モバイルやパソコンにドメイン設定(受信拒否設定)をされているお客様の場合、弊社からお送りするメールをお届けすることができません。
お手数ですが、ドメイン設定を解除していただくか、弊社ドメイン『@ambiance.co.jp』を受信リストに加えていただきますよう、お願い申し上げます。
- 電話でのご予約
-
TEL.0120-125-955[営業時間] 8:45~17:45
[定休日] 日曜・祝日
.png)
